Magnificent Mini-Penthouse with Panoramic Sea Views

Tel Aviv

Ask Me For More Information

Avraham Shay Monarov

Agent

Office Phone:03-7710977

office@israelsir.com

6203

Key Details

Property Type

Penthouse

Interior

408 m²

Balcony

80 m²

Price in ILS

₪28,000,000

Price in USD

$9,395,973

Features & Amenities

Bedrooms

4

Full Baths

3

Balconies

1

Parking

4
  • Air Conditioner
  • Mamad / Bomb shelter
  • Intercom
  • BBQ
  • Elevator
  • Swimming pool
  • Modern Style
  • Storage Unit
  • Designer Kitchen
  • High Floor

Property Description

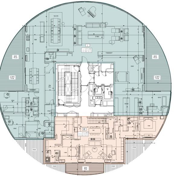
Located on the 12th floor of the prestigious Blue Towers complex in North Tel Aviv, this magnificent mini-penthouse offers unparalleled luxury with panoramic sea views. Designed by the renowned architect Ilan Pivko, the property spans approximately 408 m2 and is bathed in natural light, creating an inviting and warm atmosphere. It features a large living room, an open-plan kitchen with modern appliances, four bedrooms, three bathrooms, and a laundry room. The expansive 80-square-meter terrace is ideal for entertaining, complete with an outdoor kitchen, BBQ area, and seating space.

The thoughtful layout ensures private spaces for each family member while providing ample shared areas for quality time together. Additional amenities include one storage unit and four parking spaces, making this mini-penthouse the epitome of luxury living.

The Blue Towers:

The Blue Towers complex is an epitome of luxury living, seamlessly blending the elegance of Bauhaus architecture with the serenity of its natural surroundings. Situated in North Tel Aviv, just a short stroll from the pristine waters of “Hof Hatzuk,” it offers residents an unparalleled lifestyle experience. The breathtaking views of the Mediterranean Sea provide a stunning backdrop to daily life, with mesmerizing sunrises and sunsets enhancing the sense of boundless potential and tranquility.

Within this prestigious community, residents enjoy exclusive access to a private country club, featuring ecological pools, meticulously landscaped gardens, a semi-Olympic indoor pool, and an outdoor pool. Fitness enthusiasts will appreciate the state-of-the-art gym, while those seeking relaxation can indulge in the spa and pampering treatment room. With 24/7 security ensuring peace of mind.

contact information

אברהם מונרוב

Agent

Office Phone:03-7710977

office@israelsir.com

Ask Me For More Information

Similar Properties For You

₪20,000,000 Tel Aviv
₪30,000,000 Tel Aviv
₪25,000,000 Tel Aviv
₪36,000,000 Tel Aviv
₪17,000,000 Tel Aviv
₪30,000,000 Tel Aviv

The listing information set forth on this site is based upon information which we consider reliable, but because it has been supplied by third parties to us, we cannot represent that it is accurate or complete, and it should not be relied upon as such. The offerings are subject to errors, omissions, changes, including price, or withdrawal without notice. All dimensions are approximate and have not been verified by the selling party and cannot be verified by Israel Sotheby's International Realty. It is recommended that you hire a professional in the business of determining dimensions, such as an appraiser, architect or civil engineer, to determine such information.

read more...

The site contains various materials, protected by copyright, trademarks and proprietary rights, including content, images, graphics, music, video and sound, some of which are owned exclusively by the Company and/ or others are owned by third parties. Due to these rights any use of the site or part of it to create a derivative work or exploit the site and / or the content of the site, in whole or in part for any purpose other than for which the site was created is prohibited.

Sotheby’s International Realty is a registered trademark owned and licensed to SIR Affiliate LLC.

Each Office is Independently owned and Operated.

Call Now Button